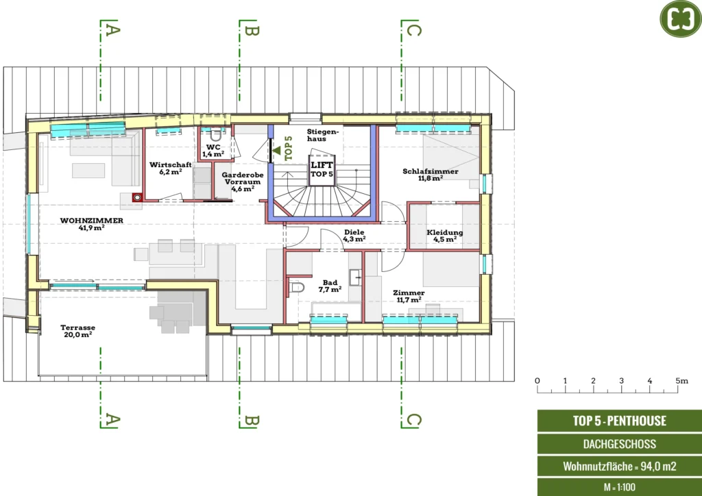
Penthouse Top 5

Penthouse mit Weitblick: Die Wohnung erstreckt sich über das gesamte Dachgeschoß und kombiniert hohe Räume mit großzügige Fensterflächen. Die Dachterrasse ist perfekt nach Südwesten ausgerichtet und garantiert erholsame Abendstunden mit wunderschönen Sonnenuntergängen. Geniessen Sie die ruhige und sonnige Lage und profitieren Sie von der ausgezeichneten Situierung des kleinen Wohnhauses im Vorstadtbereich von Salzburg.

Kurze Wege – alle Besorgungen des täglichen Lebens können zu Fuß erledigt werden.

… und vieles mehr

Schlafzimmer

Badezimmer

Wohnfläche

Geschoss

Immobilien-Highlights

DETAILPLÄNE

mit COCCON entfalten sich ihre Wohnträume.

Kontakt für persönliche Beratung:

COCCON GmbH

Erdgeschosswohnung 1

Details über Wohnung