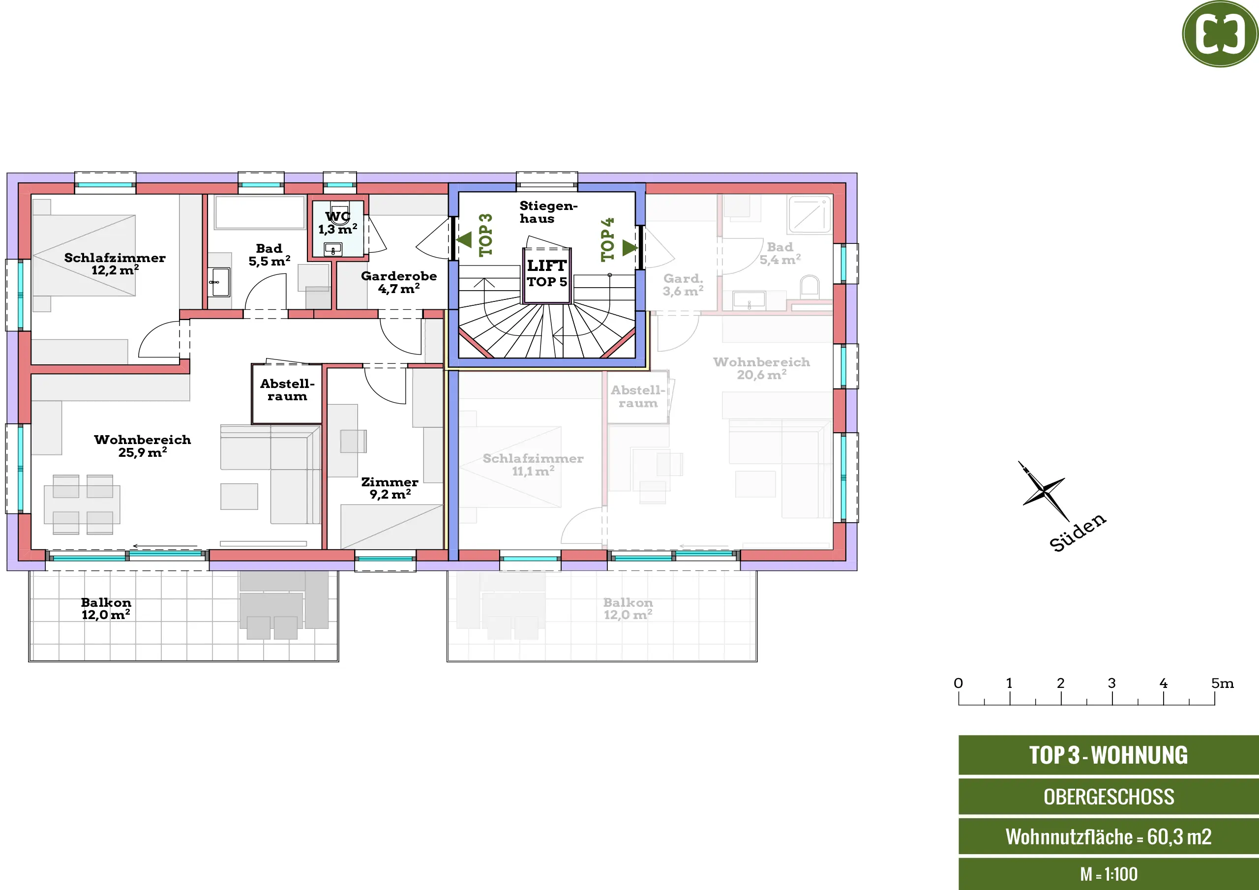
Obergeschosswohnung Top 3

Perfekt nach Südwesten ausgerichtete 3 Zimmer – Wohnung im Ortszentrum von Mayrwies bei Salzburg. Geniessen Sie die ruhige und sonnige Lage und profitieren Sie von der ausgezeichneten Situierung des kleinen Wohnhauses im Vorstadtbereich von Salzburg.

Kurze Wege – alle Besorgungen des täglichen Lebens können zu Fuß erledigt werden.

… und vieles mehr

Schlafzimmer

Badezimmer

Wohnfläche

Geschoss

Immobilien-Highlights

DETAILPLÄNE

mit COCCON entfalten sich ihre Wohnträume.

Kontakt für persönliche Beratung:

COCCON GmbH

Erdgeschosswohnung 1

Details über Wohnung